Stabile artigianale commerciale e abitativo a Muzzano

1982 - 1987 Casa per anziani consortile dei comuni di Agra – Breganzona – Gentilino – Montagnola – Muzzano – Sorengo, ubicazione Sorengo.
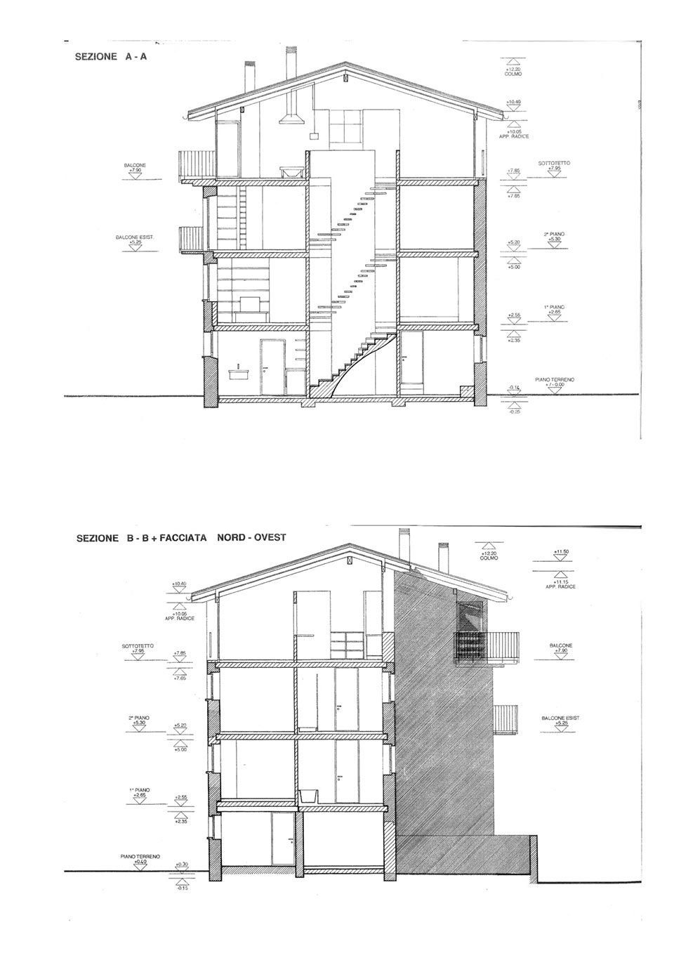
1986 - 1987 Centro commerciale-artigianale-abitativo a Muzzano/Piodella. Proprietario Isella&Foletti.
1987 - 1988 Ristrutturazione casa d’appartamenti con un ristorante a Gentilino. Proprietario Antonio e Domenica Minoretti.
1988 - 1992 Ristrutturazione e restauro di una casa d’appartamenti in Via al Lido a Viganello.
Progetto originale Arch. Mario Chiattone. Proprietario Luigi Tanzi.
1994 - 1996 Rifacimento facciate e disegno nuovo tetto stabile d’appartamenti Ex Borsa-Somazzi a Lugano. Proprietario Città di Lugano.
1998 - 2001 Nuovo insediamento in edificio esistente di una fabbrica di contatti elettrici per l’industria aeronautica a Bioggio.
Proprietario Tri–Star Electronics Europe SA.
2001 - 2002 Ridisegno di 4 appartamenti al piano mansardato nello stabile Ex Borsa-Somazzi a Lugano.
Proprietario Città di Lugano.
2004 - 2005 Ridisegno 2 appartamenti al piano mansardato nello stabile Ex Borsa-Somazzi a Lugano.
Proprietario Città di Lugano.
2004 - 2006 Ampliamento casa per anziani consortile dei comuni di Collina d’Oro – Muzzano – Lugano – Sorengo, ubicazione Sorengo.
2008 - 2010 Palazzina di 12 appartamenti a Stabio. Proprietario Immobiliare Faccette SA.
2011 Allestimento esposizione d’arte alla Pinacoteca Zuest a Rancate Emilio Oreste Brunati – pittore e scultore.
2011 - 2012 Sopraelevazione di uno stabile per la realizzazione di un atelier di pittura con spazio espositivo. Proprietario Alida Brunati.
2016 - 2018 Centro per richiedenti l'asilo della Croce Rossa Svizzera sezione del Sottoceneri a Cadro, quartiere di Lugano. Proprietario CRSS Lugano.
2017 - 2019 Casa di 12 appartamenti a Canobbio. Proprietario Ugo Bassi SA.
2018 - 2019 Ristrutturazione e restauro di un edificio d’interesse culturale locale con destinazione a Relais a Vico Morcote. Proprietario Melania Crocco.
Progetti importanti realizzati:
1987 Progetto per un parco “Al Castell” a Montagnola. Comune di Montagnola.
1989 Analisi storica e studio di massima per l’ampliamento del cimitero di Sant’Abbondio a Gentilino. Proprietario Comune di Gentilino/Montagnola.
1993 - 1995 Progetto per una area di svago a Lago e porto a Pian Roncate. Comune di Montagnola.
1997 Piano particolareggiato comparto piazza Brocchi e adiacenze. Comune di Montagnola.
1999 Piano di Quartiere a Montagnola. Proprietario eredi Allemann.
Dal 1982 Lo studio Calori ha realizzato altri progetti di minore importanza quali piccole ristrutturazioni, nuove case d’abitazione unifamiliari, diversi studi di fattibilità.

Indirizzo
Sergio Calori
Via Antonio Fusoni 4
6900 Lugano